Details

Product condition

new

Lloji i njoftimit

Shitet

Tipologjia e nderteses

2+1

Sipërfaqe banimi në m2

136

Sipërfaqe truall në m2

194

Numri i tualeteve

2

Garazh / Hapsire parkimi

Jo

Statusi i Objektit

Pa hipotekë

Gjendja

I pamobiluar

Adresa

Golem

Katet e Objektit

2

Description

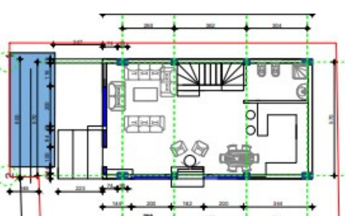
Vilë në shitje-Golem Shitet vilë në një ndër zonat më të kërkuara dhe preferuara për gjatë sezonit veror dhe jo vetëm, në Golem. Zona në të cilën ndodhet i plotëson të gjitha facilitetet e nevojshme për një jetesë sa më komode. Vila ndodhet 2 minuta larg nga deti. Vila është 2 katëshe ka sipërfaqe trualli 194.9m2, sipërfaqe totale ndërtimi 136.1m2 ku sipërfaqja e katit përdhe është 63m2 dhe sipërfaqja e katit të parë është 73.1m2. Vila ka sipërfaqe tarrace 73.1m2, sipërfaqe të përbashkët të rrugës së brendshme 1.53m2 dhe sipërfaqe pishine 12.9m2. Hapësira e brendshme e katit përdhe është e organizuar në ambjent ndenje+gatimi+ngrënie, tualet dhe pishinë. Ndërsa kati i parë ka 2 dhoma gjumi, tualet dhe 2 ballkone. Për më shumë informacion ose një vizitë në pronë mos hezitoni të na kontaktoni!

Newsletter